
Empresa charter
Destaques da embarcação
Não é necessária carta de navegação para alugar este barco.
Tom Sawyer TS1000 | Bolle 04
Fotografias do fabricante. Serão disponibilizadas fotografias reais em breve.
- Ano2017 Renovado em 2022
- Calado0.7 m
- Pessoas6
- Boca3.5 m
- Camas4 + 2
- Motor15 hp 11.2 kW
- Cabinas2
- Depósito de combustível50 l Consumo de combustível 4 l/h
- Casas de banho1
- Depósito de água250 l
- Depósito de resíduos380 l
- Comprimento10 m
Comodidades
Navegação e segurança
- Propulsor de proa
- Plotter GPS de exterior
- Gerador
- Plotter GPS de interior
- Painéis solares
Sala e cabinas
- Ar condicionado
- Duche
- Frigorífico
- Duche exterior
- Máquina de café
- Fogão
- Grelhador
- Utensílios de cozinha
- Almofadas e cobertores
- Lava-loiça
- Aquecimento
- Depósito de resíduos
Entretenimento
- Sistema de áudio
- Sistema de som no interior
- Televisão de ecrã plano
- Leitor de DVD
- Plataforma de banhos
- Stand Up Paddle
Descrição
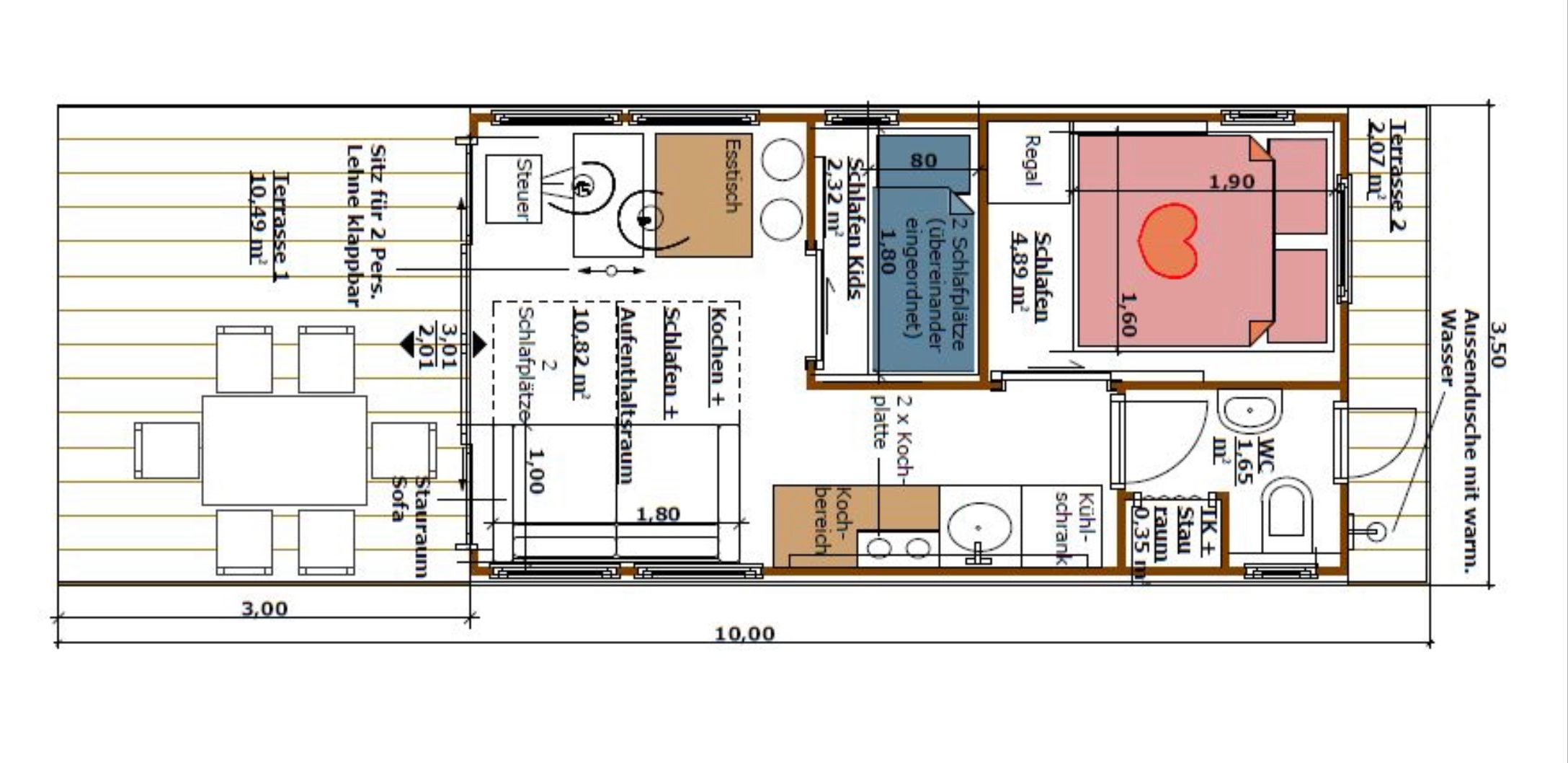
O barco casa Tom Sawyer TS1000 Bolle 04 foi contruído em 2017 e renovado em 2022. Está ancorado em Beetzsee Radewege Seebrücke, Alemanha.
Este barco casa tem 2 cabines and pode acomodar até 6 pessoas. Um chuveiro está à disposição dos hóspedes e há 1 WC a bordo.
Este barco casa está equipado com painéis solares, plotter GPS de interior, grelhador e propulsor de proa. Nos dias mais frios, os hopédes beneficiam de aquecimento. Equipamento como televisão de ecrã plano, sistema de áudio, leitor de DVD, stand up paddle e sistema de som no interior também está disponível.
A cozinha que se encontra a bordo está equipada com fogão, lava-loiça e utensílios de cozinha que irão facilitar a preparação de refeições. A máquina de café, grelhador e frigorífico completam a cozinha.
Este barco casa é gerido por Hausboot Beetzsee, sendo avaliado pelos nossos clientes em 8.5/10.
Cabinas
- 1x
Cabina dupla
- 2x
Camas na sala
- 1x
Cabina dupla (beliche)
- 1x
Casas de banho
Informações úteis
Empresa charter
Hausboot Beetzsee | #24 de 78 empresas charter em Alemanha
Cancelamento / Políticas de pagamento
As políticas de cancelamento e pré-pagamento variam de acordo com a sua seleção. Por favor, verifique as condições de pagamento ao selecionar o preço acima. Consultar preço
Carta de navegação necessária
Animais de estimação
Animais de estimação são bem-vindos. Custos adicionais podem ser aplicados.
Métodos de pagamento aceites pela empresa charter
Cash
Informação sobre a marina
A Beetzsee Radewege Seebrücke situa-se perto de Beetzsee, Alemanha. A marina pode acomodar até 4 embarcações.
Localiza-se a 94 quilómetros do aeroporto mais próximo e a 1 quilómetro do centro da cidade (Beetzsee). A viagem de táxi do aeroporto até à marina tem um custo aproximado de 220 €.
A Beetzsee Radewege Seebrücke possui uma ampla variedade de instalações, incluindo WiFi, estacionamento, posto de combustível, casas de banho e chuveiros.
Também disponibiliza restaurante.
Todas as dormidas têm acesso a água e eletricidade.
Perguntas frequentes
De que cartas preciso para alugar a embarcação Tom Sawyer TS1000 | Bolle 04?
Para alugar a embarcação Tom Sawyer TS1000 | Bolle 04 não precisa de carta.
O que é o Transit Log?
O Transit Log é uma taxa obrigatória que inclui a limpeza final, as taxas com licenças e os custos com a preparação de documentos.
Quais os custos adicionais?
Pode encontrar os custos adicionais listados como extras obrigatórios no perfil de cada embarcação. Deve também considerar os custos de amarração e as despesas com combustível e alimentação durante as suas férias no mar.
Quais os métodos de pagamento para serviços e extras no local?
Os extras podem ser pagos na base, mas somente em dinheiro.
Que documentos receberei da Boataround após a reserva?
Receberá de imediato a confirmação da reserva e o contrato da empresa charter. Após pagamento da reserva, irá receber a lista da tripulação, o cartão de embarque e informação sobre a marina base.
Como posso cancelar a minha reserva?
Contacte o nosso serviço de apoio ao cliente através do número +351 308 801 218 ou do e-mail [email protected]. Procuraremos ajudar de imediato.
O barco Tom Sawyer TS1000 | Bolle 04 tem seguro?
Todas as embarcações listadas em trycharter.ru têm seguro.
O que é o depósito?
O depósito é o valor monetário usado para garantir a cobertura de quaisquer eventuais danos causados à embarcação. Ficará pré-autorizado no seu cartão.
O barco Tom Sawyer TS1000 | Bolle 04 pode ser alugado com e sem skipper?
O barco Tom Sawyer TS1000 | Bolle 04 só pode ser alugado sem capitão.
Avaliações de Tom Sawyer TS1000 | Bolle 04
Este cliente não deixou nenhum comentário na sua avaliação.




































